Cogent Heritage Consultancy

ENFORCEMENT

Newcombe House, Notting Hill Gate

ENFORCEMENT

 

top - next

ANTEPAVILION
BRUNSWICK AND COLUMBIA WHARF, 53-55 LABURNUM STREET, HACKNEY, LONDON E9 7HA

Client:  Antepavilion Commission

 Counsel:  Stephen Cottle

 Project overview:  Heritage expert witness on behalf of the appellant to two enforcement notices against:

·       The erection of four unauthorised structures at roof level, the installation of a platform and decking at roof level and the installation of fencing around the roof edge at 53 Laburnum Street.

·       A material change of use of the land to a mixed use - (A3) Restaurant and bar, (D1) the display of art installations (D2) cinema; and, use to host social gatherings / as an events space (Sui generis use). 

The site falls within the Regent’s Canal Conservation Area and the heritage case revolved around the effect of the appeal development on the Regent’s Canal Conservation Area and the setting of neighbouring listed buildings (Haggerston Baths opposite the rear of the site and the immdediately adjoining Haggerston Bridge over the canal). This included the uses and display of art, which the Appellant argued enhances rather than harms the character and appearance of the conservation area, which has a notable and longstanding association with artists and artwork.  

This was a very interesting case, perhaps most (in) famous for the Council’s injunction against a floating installation of four life sized sharks in the canal (appropriately called Sharks!).  The Inspector described it as “a novel case where both appeals concern what have been referred to as art installations”. The structures included winning entries in an annual design competition known as the Antepavilion Commission.  The commission promotes art, design and new initiatives in low-cost but craftsmanship-intensive, self-build architecture.

Appeal A dealt specifically with various rooftop structures (some of which had been dismantled), and two of these, along with two fences, were found to be harmful - though not the art installations subject to the enforcement action.

Appeal B was successful and planning permission was granted for a material change of use of the land from a mixed use (2 dwellings and artists’ studios) to a mixed use comprising: 2 dwellings, artists’ studios, a restaurant and bar, the display of art installations; a cinema; and to host social gatherings / as an events space (sui generis use).

The use does not include any specific art installations, as the Inspector found that externally displayed art installations generally require planning permission in their own right. Those that may not require planning permission in their own right, would in the Inspector's view be unlikely to be harmful in terms of their effect on the character and appearance of the area. The Inspector found that granting planning permission for the mixed use would not necessarily result in an uncontrolled proliferation of art installations that may harm the character and appearance of the area.  The Inspector found that the conditions suggested by the Council, prohibiting the display of art on the roof or on the canal, were unnecessary.

 

top - next

LAND AT THE COTTAGE, REMPSTONE
LAND AT THE COTTAGE, 35 MAIN STREET, REMPSTONE, LE12 6RH

Client:  Private client

Planning Consultant:  Marrons/Shakespeare Martineau

Project overview:  After measurements were taken on site for works to a gate, brick piers and a wall immediately adjacent to a grade II listed building, Rushcliffe Borough Council wrote a letter notifying the landowners that, in the Council’s opinion, the wall was considered to be curtilage listed.  The letter contained a notification that any works to the ‘curtilage listed wall’ without Listed Building Consent is an offence that may lead to a prosecution.  The Client was advised to submit an application before any works were to take place.  Local residents proceeded to affix notices the piers claiming that they were curtilage listed. 

Cogent produced a detailed curtilage report, based on a site inspection, research and analysis, and consideration of relevant case law, which reached a clear conclusion that the gate, brick piers and wall immediately adjacent to the listed building could not reasonably construed as falling within the curtilage of a listed building.  Following the issuing of the report to the Council, a prompt response confirmed that the structures were not curtilage listed, or within the curtilage of a listed building, and that works to these structures did not require Listed Building Consent.    

 
 
 

top - next

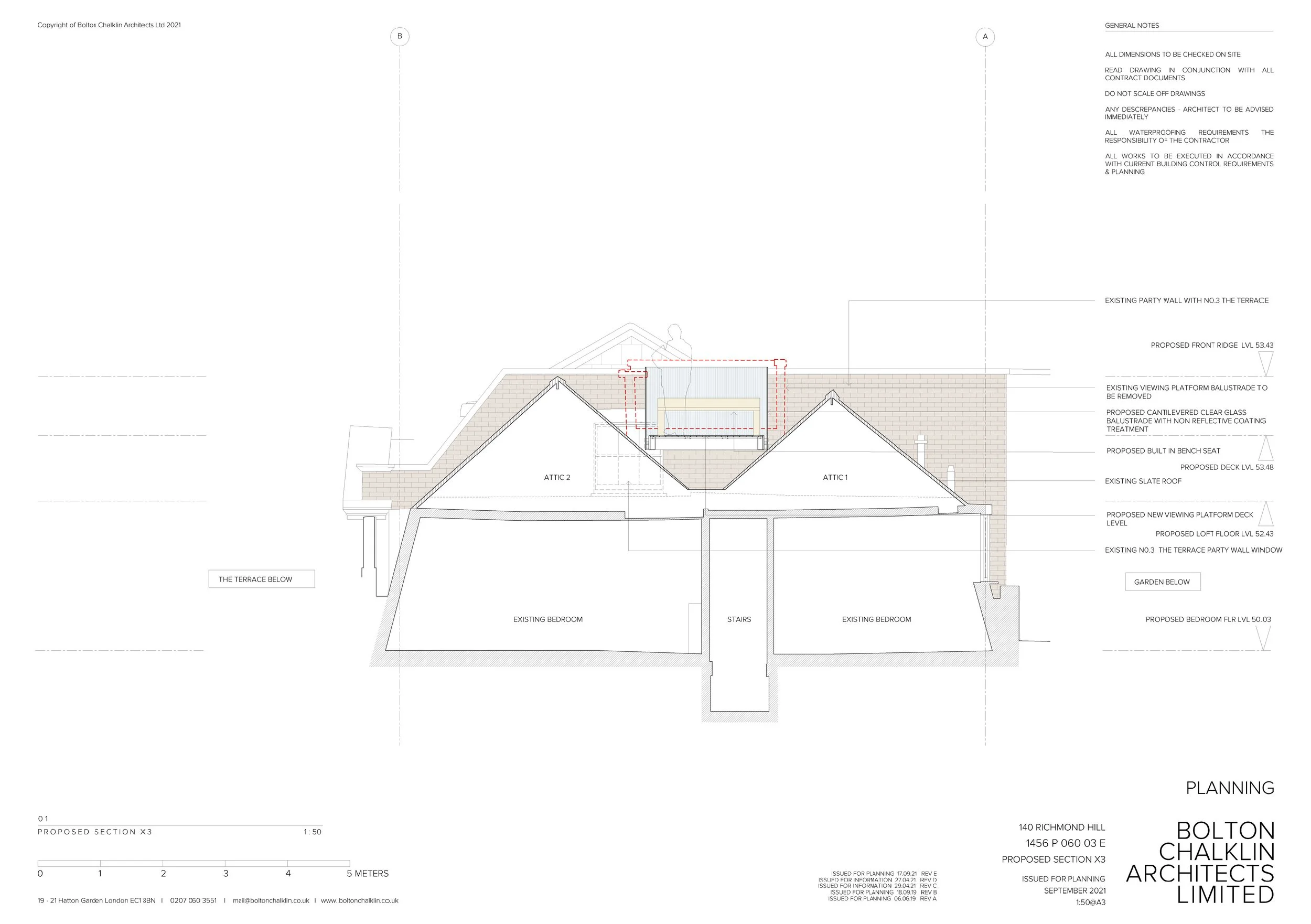
4 THE TERRACE, RICHMOND
4 THE TERRACE, 140 RICHMOND HILL, RICHMOND, LONDON TW10 6RN

Client:  Private client

Architect:  Bolton Chalkin Architects

Project overview:  Heritage expert witness in relation to an Enforcement Appeal against a new roof access enclosure to a valley roof at the top of the grade II listed building, and a small platform constructed within the roof valley.  Although the appeal was dismissed, the Inspector agreed for the most part that there would be no harm, and provided very clear guidance as to where the harm of the structures (as it was then) resulted from. 

It was therefore possible to overcome the harm through a redesigned scheme, which was the subject of pre-application submissions and feedback.  The redesigned enclosure and platform were consented and the enforcement case closed.     

 
 

top

52 ASMUNS PLACE
52 ASMUNS PLACE, BARNET, LONDON NW11 7XG

Client:  Private client

Architect:  Brod Wight Architects

Project overview:  Heritage advice and a supporting Heritage Statement for a retrospective Listed Building Consent application following internal strip-out and alterations to this grade II listed building.  Research demonstrated that some of the changes followed a historic precedent, and the application was approved.      

 

top